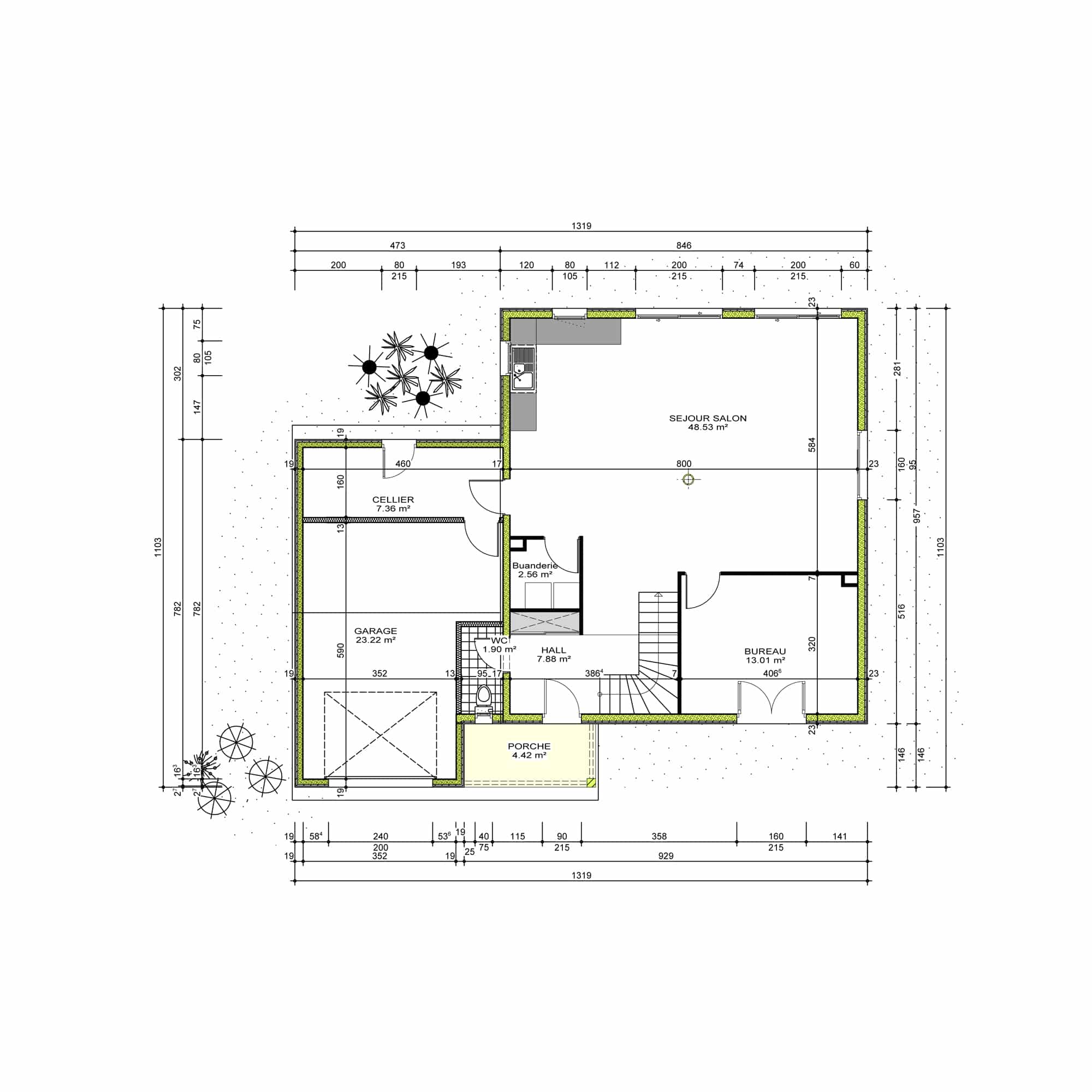
Référence MP10


Surface habitable : 148,51 m²

  • Entrée :  7.88 m²
  • Cuisine / Salon : 48.53 m²
  • Cellier :  7.36 m²
  • Bureau : 13.01 m²
  • WC : 1.90 m²
  • Buanderie : 2.56  m²
  • Chambre 1 :  14.39 m²
  • Chambre 2 :  13.81 m²
  • Chambre 3 :  13.53 m²
  • Salle de bain :  6.41 m²
  • Cabinet de toilette :  3.18 m²
  • Bureau : 11.54 m²
  • Palier : 4.41 m²
  • Autre surface : garage de 23,22 m²

* Les surfaces & plans sont présentés à titre indicatif et sont non contractuels.